LV123
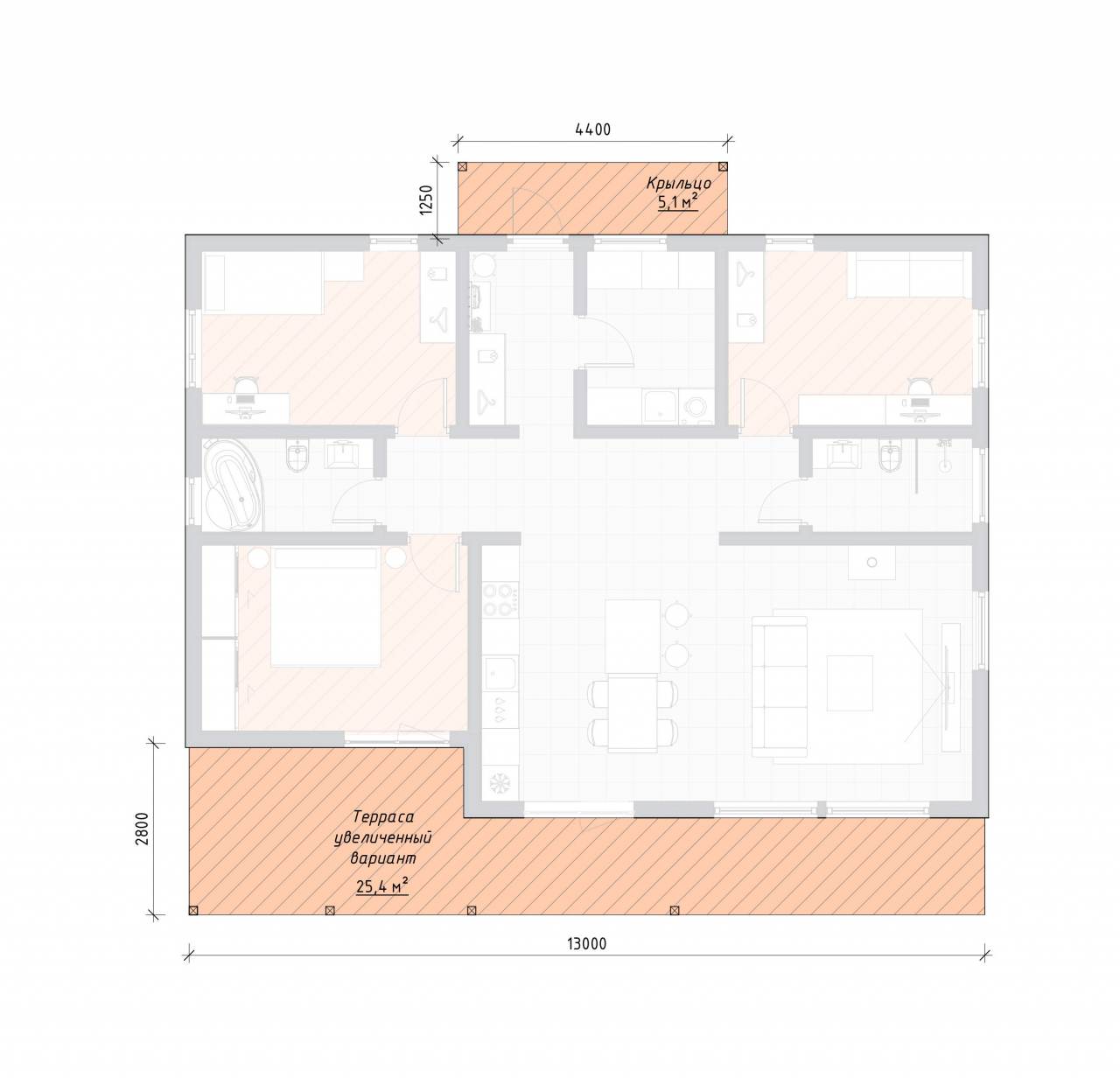
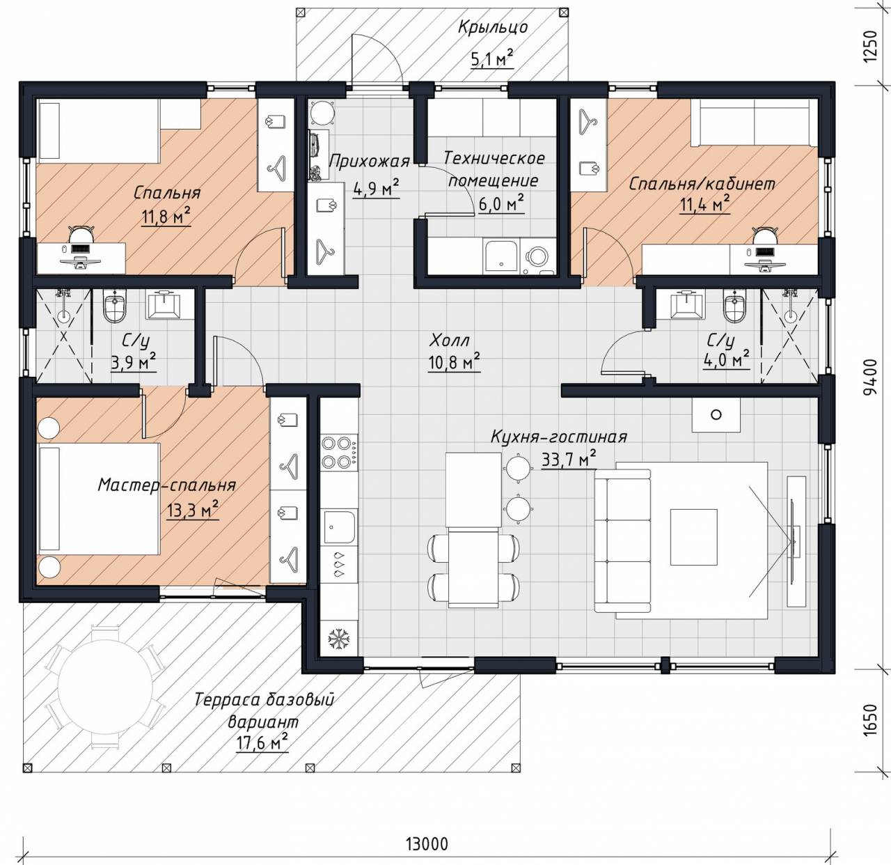
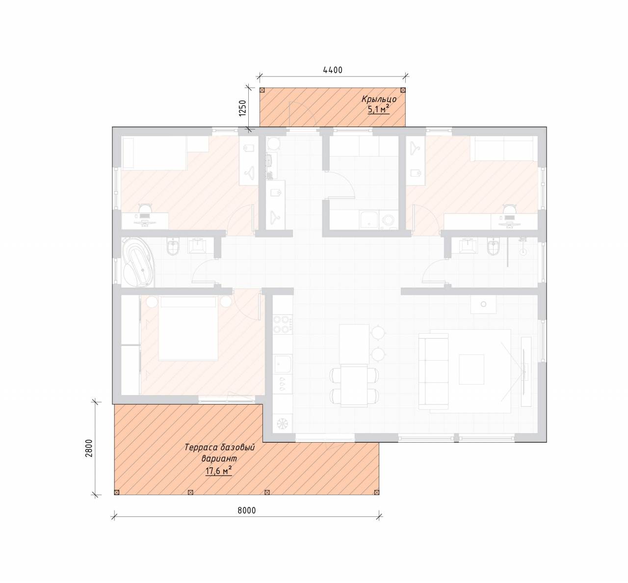
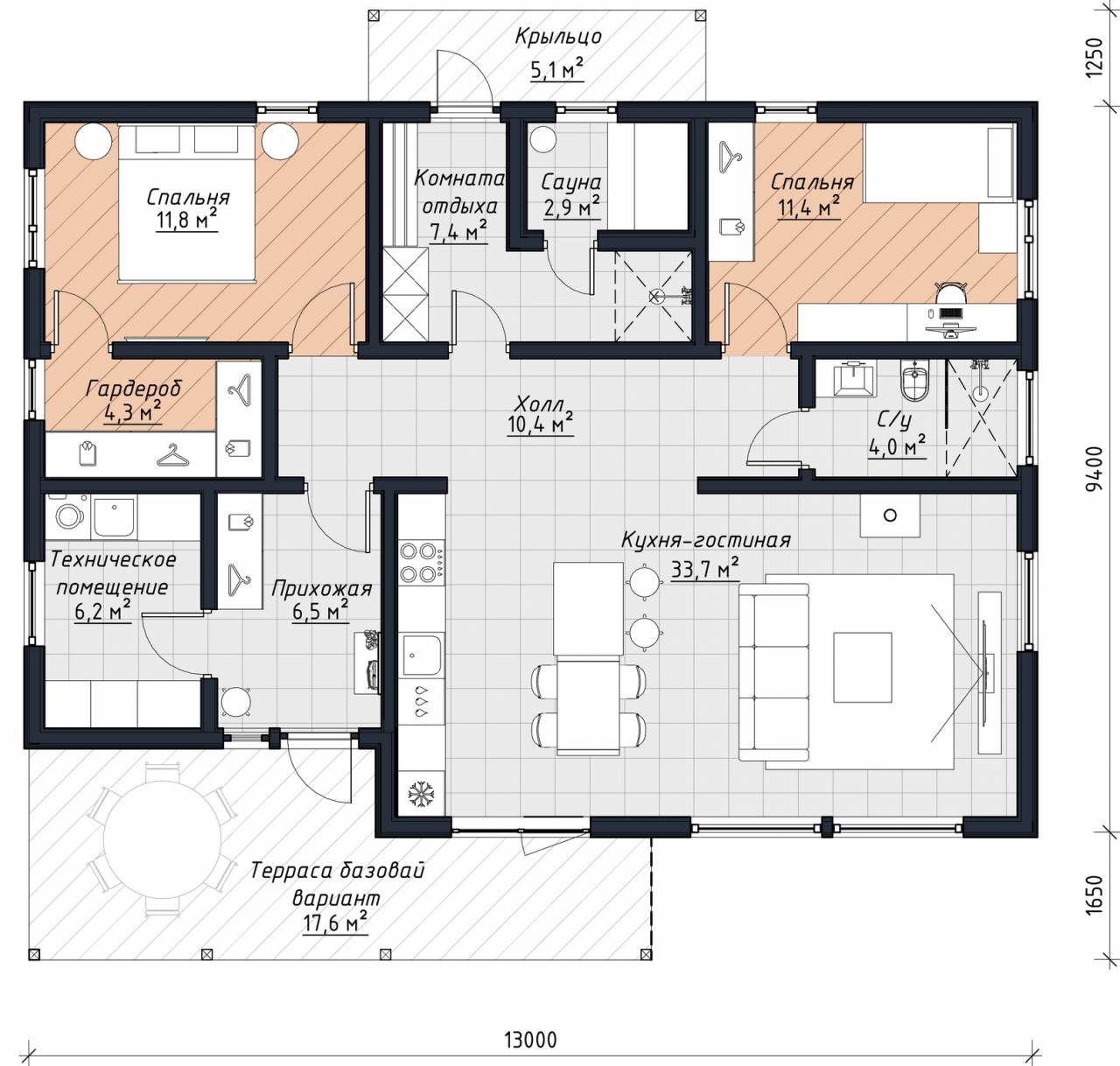
Планировки
возможно отразить зеркально
Prefab - домокомплект заводского производства
  • Обвязка стеновых панелей
  • Prefab энергоэффективные стеновые панели высокой заводской готовности из сухой, строганой, калиброванной доски с противопожарной фаской. Общее утепление 225мм с перекрытием мостиков холода (UMATEXTermo 200мм + звукоизоляционная плита Beltermo 25мм)
  • Prefab внутренние перегородки выполненные из сухой, строганой, калиброванной доски с противопожарной фаской
  • Несущие силовые элементы - балки и столбы - клеёный брус и/или LVL-брус
  • Для 2х этажных домов перекрытие LVL 45х260(h) мм
  • Prefab кровельные панели/или фермы, энергоэффективное утепление кровли UMATEXTermo 300мм
Заказать только домокомплект со сборкой
Цена от
4 111 334
Расчет стоимости White box
Комплектации
0
Внутренняя отделка
0
Опции
0
Инженерные опции
0
Удаленность от МКАД
0
по проездным дорогам, информация примерная, точное расположение рассчитывается при заключении договора
Итоговый расчет
Стоимость
0
Дом в кредит
Этот дом в ипотеку
от 6,1% *
* Процентная ставка указанная на сайте livvil.ru не является публичной офертой. Актуальные данные вы можете уточнить у менеджеров нашей компании.
Как строится дом LIVVIL
Подготовительные и земельные работы на участке
Заливка монолитной фундаментной плиты
Изготовление домокомплекта на производстве
Доставка домокомплекта на участок
Монтаж стеновых панелей и межэтажного перекрытия
Монтаж кровельных панелей и кровельного покрытия
Монтаж окон и входной двери
Монтаж водосточной системы
Монтаж инженерных коммуникаций
Предчистовая отделка
Этапы и сроки
1. Заключение договора 1 день
2. Устройство фундамента на участке и производство панелей на заводе 15 дней
3. Возведение дома с внешней отделкой 30 дней
4. Монтаж инженерных сетей и Предчистовая отделка 35 дней
Производство

Дом Livvil — это готовое изделие, выполненное на ЧПУ с заводской точностью. При производстве домов, мы используем здоровую, качественную древесину камерной сушки. Закупаем сырье у ответственных поставщиков, которые ведут законную вырубку с последующим лесовосстановлением. А для предотвращения чрезмерного потребления природных ресурсов, учитываем стандартные размеры пиломатериалов, поэтому при строительстве дома почти не остается отходов.

Станок с ЧПУ Hundegger SpeedCut SC3 - для изготовления элементов стен и перекрытий

Поворотный стол Randek BS20 для монтажа панелей стен, кровли и перекрытий

Готовые кровельные панели

Готовые стеновые панели

Гарантии и сервис

Для удобства можно выделить три типа гарантии:

  • на все несущие конструкции — 10 лет
  • на фасадную отделку — 2 года
  • на окна и кровлю — гарантия от производителя
  • на инженерное оборудование - гарантия от производителя
  • на внутреннюю отделку и инженерные работы - 1 год
  • комплексное сервисное обслуживание
Как купить

Оставьте заявку на сайте livvil.ru или свяжитесь с менеджером LIVVIL любым доступным способом. Напишите нам на электронную почту info@livvil.ru, позвоните по телефону +7 (812) 454-54-59 или оставьте заявку через мессенджеры +7 921 188-89-62 (WhatsApp/Telegram)

Для покупки дома LIVVIL вы можете воспользоваться ипотекой любого из банков-партнеров, мы аккредитованы в СБЕР и в Дом РФ, процесс получения кредита в этих банках для наших клиентов максимально упрощен.

Для заявки достаточно предоставить паспорт гражданина РФ, любой документ на выбор: СНИЛС/ водительское удостоверение/ удостоверение личности военнослужащего/ удостоверение сотрудника федеральных органов власти/ военный билет/ загранпаспорт и документ, подтверждающий доход.

Также для покупки дома LIVVIL можно использовать средства материнского капитала.

Построенные
Сайт использует cookie-файлы. Оставаясь на сайте, вы даете свое согласие на обработку персональных данных в порядке, указанном в нашей Политике обработки персональных данных
ОК